【外観】
-
バストイレ別
-
室内洗濯機置場
-
TVモニタ付きインターホン
-
独立洗面台
-
浴室乾燥機

リビング
和室
玄関
洗面所
キッチン- 保証金
- -
- 敷引 / 償却
- - / -
- 敷金積み増し
- -
- 間取り / 詳細
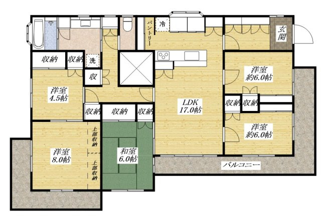
- 2LDK+3S(納戸)
LD 10.0帖/洋室 6.0帖/和室 8.0帖/S 3.0帖/S 3.0帖/S 2.0帖 - 向き
- 南
- 建物面積
- 103.99㎡
- バルコニー
(テラス)面積 - -
- 階建て
- 2階建
- 建物構造
- 木造
- 築年月
- 1986年11月(築39年)
- 種別
- 一戸建て
- 保険会社 / 料金
- 有 / -
- 保証会社 / 料金
- 必加入 / いえらぶ安心保証
初回保証料:月額家賃等の50% 以降:1年毎に10000円 月額660円 - 現況
- 空家
- 入居可能時期
- 2025年11月上旬予定
- その他条件
- 退去時ルームクリーニング代:12万円
- 設備条件
-
- 陽当り良好 / 閑静な住宅地 / 保証人不要 / 2人入居可 / 眺望良好 / 法人可 / 室内洗濯機置場 / フローリング / 出窓 / 都市ガス / 公営水道 / 公共下水 / 電気有 / 機械警備 / 照明器具付き / IHクッキングヒーター / コンロ2口以上 / システムキッチン / コンロ3口 / バス・トイレ別 / 追焚機能浴室 / 浴室乾燥機 / 温水洗浄便座 / 洗面台 / 洗髪洗面化粧台 / 浴室1坪以上 / シャワー / 独立洗面台 / エアコン / シューズボックス / 収納豊富 / インターネット対応 / TVモニタ付インターホン / 24時間緊急通報システム / 角部屋 / 初期費用カード決済可
- 契約期間
- 2年
- 賃貸区分
- 一般
- 更新料
- 1ヶ月(新賃料)
- 更新事務手数料
- -
- 総戸数
- -
- 特優賃
- -
- 取引態様
- 仲介
- 物件番号
- 97655064
- 管理コード
- -
- 情報更新日
- 2025年11月08日
- 次回更新予定日
- 2025年11月22日
- 備考
- 昭島市・青梅線・西武拝島線の賃貸なら『ライフクリエイト昭島駅前店』にお任せください。地域に詳しい経験豊富なスタッフがお部屋探しをサポート致します。お気軽に042-500-7824までご連絡ください。メールにてお問合せを頂く際、セキュリティー設定によっては、返信メールが届かない場合がございます。お手数ですが、お電話番号を記載して頂ければ幸いです。
インターネット上の物件はほとんどご紹介が可能です。気になるお部屋をまとめてご紹介させて頂きます。お部屋探しの専門店ライフクリエイト昭島駅前店までお気軽にお問合せください。HPに追加のお写真ございます! -
コンビニエンスストア
セブン-イレブン昭島東町5丁目店
333m(5分)
-
小学校
昭島市立共成小学校
459m(6分)
-
保育園
福島保育園
630m(8分)
-
幼稚園
あけの星幼稚園
664m(9分)
-
郵便局
昭島郷地郵便局
725m(10分)
-
公園
八清公園
729m(10分)
-
市役所・区役所
昭島市役所 東部出張所
737m(10分)
-
コンビニエンスストア
セブン-イレブン昭島福島町1丁目店
792m(10分)
-
警察
警視庁昭島警察署東町地域安全センター
793m(10分)
-
保育園
多摩保育園
796m(10分)
-
信用金庫
多摩信用金庫 昭島支店
820m(11分)
-
スーパー
マルフジ東中神店
891m(12分)
-
保育園
昭島ナオミ保育園
966m(13分)
-
ドラッグストア
サンドラッグ 昭島中神2丁目店
1170m(15分)
物件の特徴
セールスポイント
都市ガス!浴室換気乾燥機!追炊きバス!収納豊富!
ポイント
都市ガス!浴室換気乾燥機!追炊きバス!収納豊富!昭島市 昭島 賃貸 部屋探し 不動産 ライフクリエイト 昭島駅前店
担当者のコメント
パノラマ画像
基本情報
設備条件
その他
ロコハウスC棟の他の部屋
周辺施設
近隣の物件
ロコハウスC棟
12万円
-
2LDK+3S(納戸)(103.99㎡)
お気軽にお問い合わせください
株式会社ライフクリエイト昭島駅前店
042-500-7824
9:30~18:30(営業時間外もお気軽にお問い合わせください)
(休:■無休(※年末年始休暇あり))
沢野 幸二郎